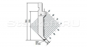
Пуансон R1 P.110.30.R06.415
Реклама Рекомендуем предложения
Детальное описание
Н (высота), 110. Радиус гиба, 0.6. Градус гиба, 30. Тоннаж, 500. Материал, C45:560-710 N/mm².
| Технические характеристики пуансона R1 P.110.30.R06.415 |
|
| Длина пуансона, мм | 415 |
| H, мм | 110 |
| Градус гиба | 30 |
| R, мм | 0,6 |
| Тоннаж | 500 |
| Материал | C45:560-710 N/mm² |
| Вес, кг | 10,5 |
Похожие товары
Каталог
Компания
Станкофф.RU
420127, Россия, Татарстан, Казань, ул. Фатыха Амирхана, 42а
+7 (800) 5555770
Социальные группы



