Комплект фрез для изготовления стенового бруса ДФ-18.48
Реклама Рекомендуем предложения
Детальное описание
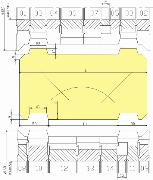
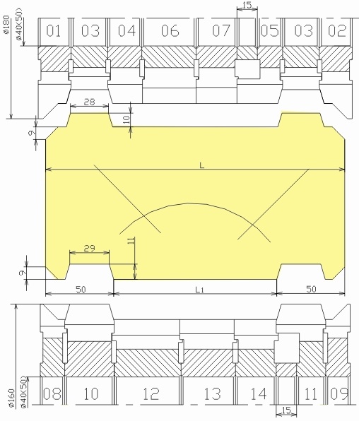
Фрезы затылованные изготавливаются с напайными пластинами Р6М5.
Назначение: комплект предназначен для Изготовления профиля стенового бруса шириной L=135...220 мм (L1 =35... 120) из древесины твердых и мягких пород на четырехсторонних станках. Ширина бруса устанавливается за счет фрез 06,07,12,13,14. При заказе указывать ширину бруса L.
Комплектация: полный комплект состоит из пятнадцати затылованных фрез.
Похожие товары
Каталог
Компания
Станкофф.RU
420127, Россия, Татарстан, Казань, ул. Фатыха Амирхана, 42а
+7 (800) 5555770
Социальные группы



