Линия по производству гашеной извести 200 тонн в сутки - Продам в Москве
Россия, Москва и Московская обл., Москва, пр-т Андропова, д. 22
Детальное описание
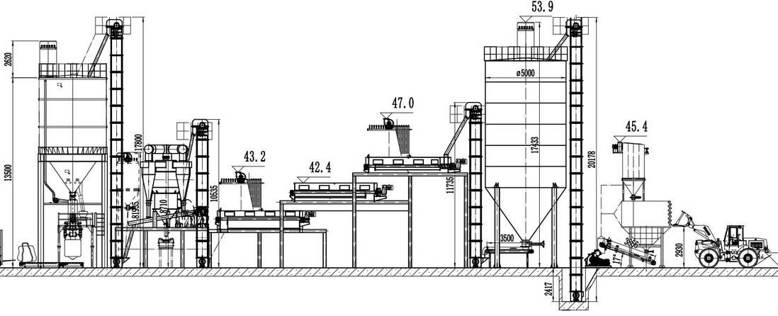
STTS Group предлагает проектирование и поставку под ключ линии по производству гашеной извести 200 тонн в сутки.
Линия по производству гашеной извести 200 тонн в сутки состоит из двух частей:
1. Линии по производству негашеной извести (на базе вращающейся печи 2,5×50м);
2. Линии по гидратации извести (гашению).
Линия по производству негашеной извести на 200 тонн в сутки:
1. Секция подготовки сырья - дробление, предварительная сушка и хранение;
2. Секция подачи в печь;
3. Секция обжига - предварительный нагреватель + печь 2,5×50м + охлаждение;
4. Секция транспортировки и хранения готового продукта;
5. Секция очистки выхлопных газов;
6. Система автоматизации;
7. Лаборатория.
Линия по гидратации извести (гашению) 250 тонн в сутки:
1. Секция подготовки сырья - дробление и хранение;
2. Секция подачи в гидрататор;
3. Секция гидратации - состоит от 1 до 3 гидрататоров; гидрататор является основным агрегатом данной установки;
4. Классификатор;
5. Секция выгрузки, хранения и упаковки готового продукта.
ОПИСАНИЕ:
Модель LPU200TD;
Прогнозируемая производительность: 200 тонн негашеной или гашеной извести из известняка естественной влажности;
Суточное потребление известняка около 470 тонн (влажностью 15% и с ППП 50%);
Установленная мощность около 900 кВт;
Суточное потребление электроэнергии около 18000 кВт•ч;
Суточное потребление воды около 50 тонн;
Суточное потребление газа около 19000 Нм3;
Персонал – 5-7 человек в смену;
Размеры установки в собранном состоянии около 100*30*18 метров (не включает склад готовой продукции);
Содержание частиц в фильтруемом воздухе составляет около 30-40 мг/м³ (возможно снижение при помощи использования более современной системы фильтрации)
Режимы управления: ручной, полуавтоматический, полностью автоматический;
Тип сборки: модульный;
Подробная комплектация: по запросу
О технологии производства извести. Гашение извести:
Негашеная известь - это оксид кальция. Технология производства негашеной извести представляет собой обжиг известняка до получения оксида кальция или негашеной извести. Известняк представляет собой кальцит, имеющий формулу CaCO3, при обжиге происходит реакция: CaCO3 -> CaO + CO2.
Гашеная известь - это гидроксид кальция. Технология производства гашеной извести представляет собой гидратацию оксида кальция (по сути - это добавление воды). При гидратации происходит следующая химическая реакция: CaO + H2O -> Ca (OH)2 с выделением тепла.
Создано 22.09.2025 Изменено 26.04.2026


