Линия по пр-ву минерального порошка (МП) 20-30 т/ч на базе двух мельниц MTW-138 - Продам в Москве
Россия, Москва и Московская обл., Москва, пр-т Андропова, д. 22
Детальное описание
STTS Group предлагает к поставке линию по производству минерального порошка (МП-1, МП-2 и МП-3) на базе двух единиц маятниковых мельниц MTW138/MTW145 из Китая полного цикла производительностью 20-30 тонн в час (ожидаемая производительность на отсеве 0-5 крепостью не более М600 - не менее 30 т/ч).
Комплектация:
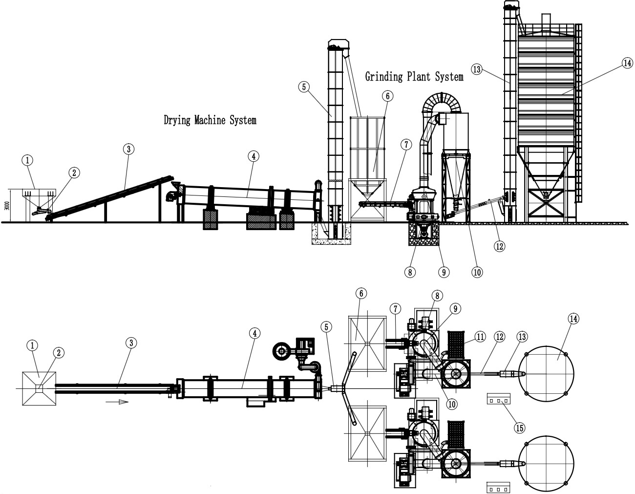
1. Секция подготовки и сушки сырья (сушильный барабан 1500х12000 мм);
2. Секция измельчения (2 мельницы MTW138);
3. Секция хранения и упаковки (2 силоса по 300 тонн);
4. Электрический шкаф и автоматическая система управления на контроллерах.
Стоимость с доставкой до Москвы, таможенной очисткой и НДС (при курсе юаня 11,5 руб. и прямом контракте с фабрикой) на сентябрь 2025 года. Данное предложение ограничено! Стоимость не включает доставку по России от ж/д станции.
Описание:
• Модель: Сушильный барабан 1500х12000 мм – 1 ед;
Мельница маятниковая трапецеидальная: MTW-138 – 2 ед.;
Система хранения готового продукта – 2 ед.;
• Производительность линии: 20-30 т/ч минерального порошка;
• Максимальный размер материала на входе в мельницу – 35 мм;
• Размер материала на выходе - 1,6-0,045 мм (минимальный до 0,038 мм);
• Электрическая мощность: 557,5 кВт (380V, 50Hz);
• Тип сборки: модульный;
• Размеры линии в собранном состоянии (приблизительные) –
ДШ 55000х20000 мм
Подробная комплектация:
1. Секция подготовки и сушки сырья:
1.1 Приемный бункер (изготавливается заказчиком) с вибропитателем GZ4F (0,45 кВт), 1 ед.;
1.2 Питающий ленточный конвейер B500x12м (4,0 кВт), 1 ед.;
1.3 Газовая горелка RIELLO двухступенчатая, 1,8 млн ккал, 1 ед.;
1.4 Сушильный барабан диаметром 1500 длиной 12000 мм (18,5 кВт), 1 ед.;
1.5 Система сбора пыли: циклон диаметром 930 мм 1 ед., распылительная башня диаметром 1200 и высотой 5500 мм (2х1,5 кВт) 1 ед., соединительные трубы 1 компл., воздуходувка Y5-47-NO8C-22kw (22 кВт) 1 ед.;
1.6 Ковшовый элеватор TH315-18m, высота 18 метров (11 кВт), 1 ед.;
2. Секция измельчения:
2.1 Промежуточный питающий бункер (изготавливается заказчиком), 100 м3, 2 ед.;
2.2 Ленточный питатель с сепаратором железных частиц (3 кВт), 2 ед.;
2.3 Мельница маятниковая MTW138: мельница с 4 валками (90 кВт) 2 ед., классификатор (18,5 кВт) 2 ед.; вытяжка (110 кВт) 2 ед.;
2.4 Импульсный фильтр DMC-112 (7,5 кВт) 2 ед.;
3. Секция хранения и упаковки:
3.1 Сборочный шнековый конвейер LS219-4m (5,5 кВт), 2 ед.;
3.2 Ковшовый элеватор NE15-20m, высота 20 метров (11 кВт), 2 ед.;
3.3 Силос готового продукта, объем 200 м3 (около 300 т), 2 ед.
4. Электрический шкаф и система управления
4.1 Электрический шкаф секции сушки сырья 1 ед.;
4.2 Электрический шкаф секции помола и хранения 2 ед.;
4.3 Компьютерная система управления - опционально.
Приблизительная себестоимость 1 тонны неактивированного минерального порошка составляет около 875 руб. (из расчета стоимости отсева известняка 500 руб. за тонну). Окупаемость линии около 12 месяцев.
Создано 22.09.2025 Изменено 26.04.2026




