Линия переработки твёрдого пластика (ПНД, ПВД, ПП) - Продам в Домодедово
Детальное описание
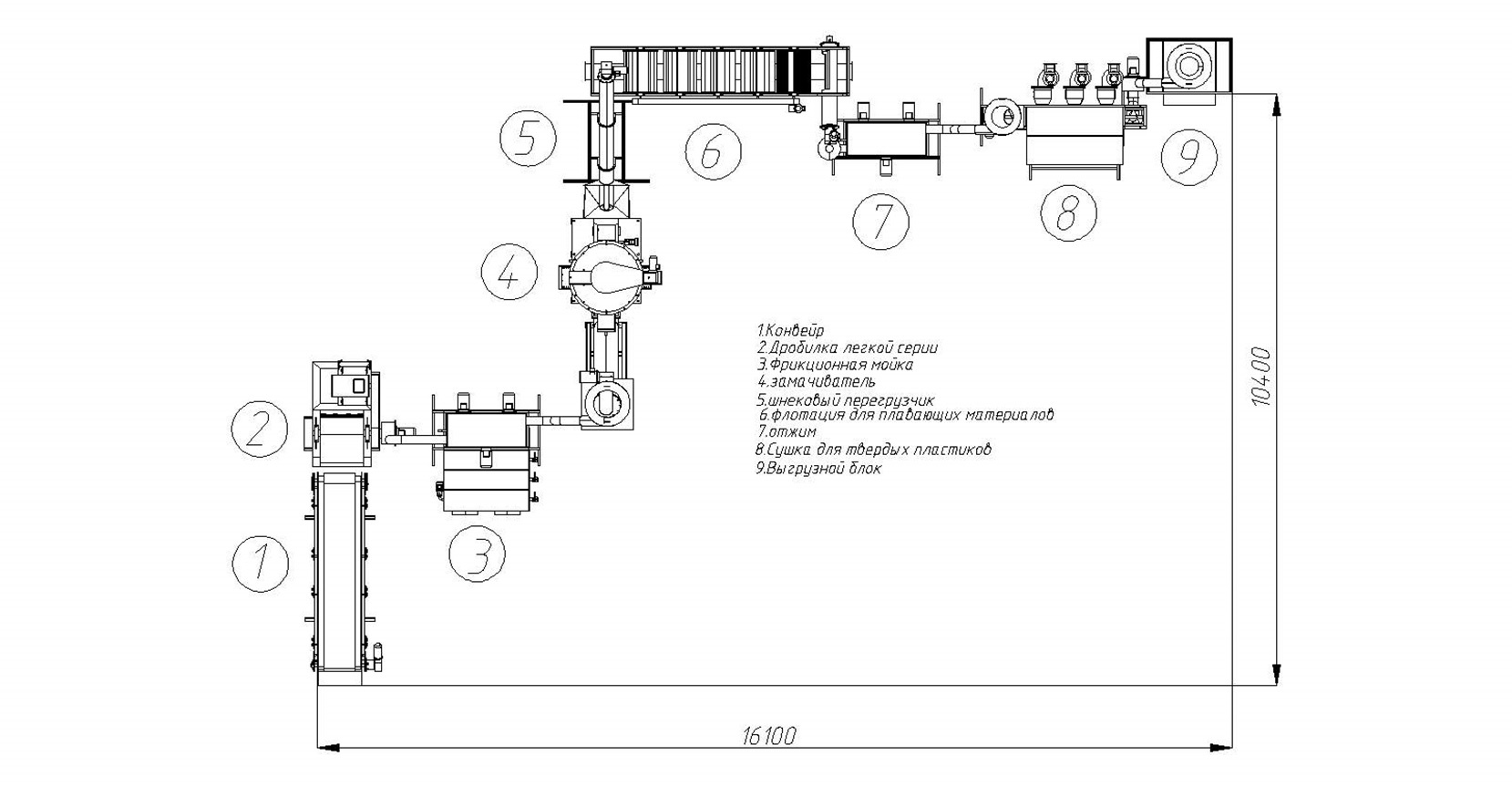
В продаже испытанная линия переработки твердого пластика (твердые тонкостенные отходы плавающих полимеров: канистры, ящики, ведра и т.п.). Общая характеристика линии: производительность 400 кг/ч, установленная мощность 163,8кВт, "крейсерская" потребляемая мощность 131кВт/ч.
Комплекс включает в себя:
1. Транспортер ленточный (600мм ширина, 3000мм, 1,5кВт)
2. Дробилка ИПР-700 (ножи "Ласточкин хвост", длина/ширина ротор: 700*400мм, 22кВт).
3. Горячая фрикционная мойка (моторный отсек с 3 центрифугами, мощность двигателей 3шт*5,5, мощность ТЭНов 18*2кВт). Выполняет основную работу по отмывке грязных отходов любых пластиков. Вода может нагреваться вплоть до кипения. В работе могут использоваться различные моющие средства. Бак обладает функциями очистки воды. Позволяет достичь высочайшего качества отмывки.
4. Перегрузчик шнековый с системой возврата воды в ванну флотации (3кВт, длина 3000мм)
5. Установка замачивания с системой выгрузки плавающих материалов (мощность ворошителя 1,5кВт, мощность шнека 1,5кВт, общая мощность ТЭНов 24кВт)
6. Ванна флотации для материалов с положительной плавучестью с дополнительно установленным циклоном-успокоителем
7. Фрикционный отжим с баком приемником (моторный отсек с 3 центрифугами, мощность центробежных нагнетателей 3шт*5,5). Применяется для отведения от перерабатываемого материала основной части рабочей воды.
8. Сушка воздушная для твердых пластмасс с входным циклоном успокоителем и сепаратором этикетки
9. Выгрузной блок (входной циклон успокоитель, опорная рама под биг-бэг и пневмотранспорт 5,5кВт). Применяется для повышения удобства выгрузки материала в тару и уменьшения количества ручного труда.
Условия и любая другая информация по телефону. Возможность поставки другой компоновки линии под другую производительность или вид полимерных отходов. В наличии различные модели дробилок, грануляторов, сопутствующего оборудования, периферии и расходников.
Создано 02.10.2019 Изменено 25.09.2025

