Металлоформы параболических лотков - Продам в Великих Луках
Россия, Псковская обл., Великие Луки, 182106, Псковская область, г. Великие Луки, ул. Новоселенинская, 5
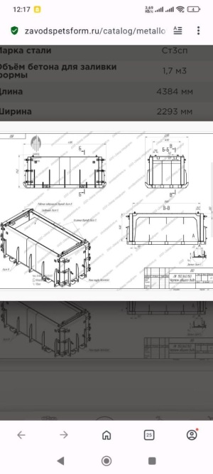
Детальное описание
Компания «М-Конструктор» изготовит металлоформы для водопроводных параболических лотков согласно ГОСТ 21509-76 и типовой серии 3.280-23 (вып. 1).
Лотки параболические используются для сельскохозяйственного и пастбищного водоснабжения. У нас вы можете заказать формы как для стандартных типоразмеров лотков длиной 6 м (ЛР-4, ЛР-6, ЛР-8, ЛР-10, ЛРГ-4, ЛРГ-6, ЛРГ-8, ЛРГ-10), так и нестандартных согласно вашим пожеланиям.
Формы при необходимости оснащаются паровыми рубашками для ускорения процесса набора бетоном распалубочной прочности, а также вибраторами для уплотнения бетонной смеси.
Цена, сроки и способ доставки обсуждается индивидуально.
Доставка продукции осуществляется автомобильным, железнодорожным или морским транспортом по договорённости с заказчиком.
Рассчитать стоимость заказа вы можете, обратившись к нашим специалистам по телефонам:
+7 (81153) 6-10-05; +7 (953) 232-09-49 и по электронному адресу info@m-konstruktor.ru или tender@m-konstruktor.ru
Создано 19.10.2022 Изменено 14.04.2026





