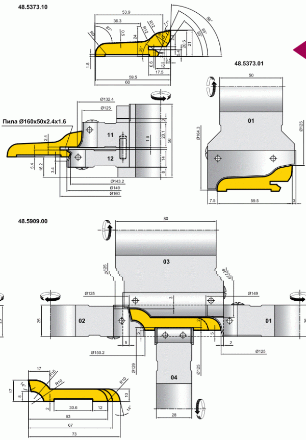
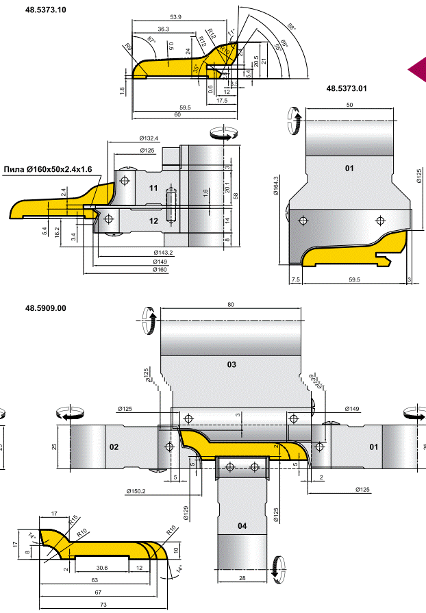
Комплекты фрез Иберус для профилирования плинтуса (48.5373.00, 48.5909.00)
Реклама Рекомендуем предложения
Детальное описание

Похожие товары
Каталог
Компания
Станкофф.RU
420127, Россия, Татарстан, Казань, ул. Фатыха Амирхана, 42а
+7 (800) 5555770
Социальные группы



