Контейнер-цистерна тип Т11 SWAP 33куб.м - Продам в Владивостоке
Россия, Амурская обл., Благовещенск (Амурская обл.), ул. Чехова, д.3, офис 27
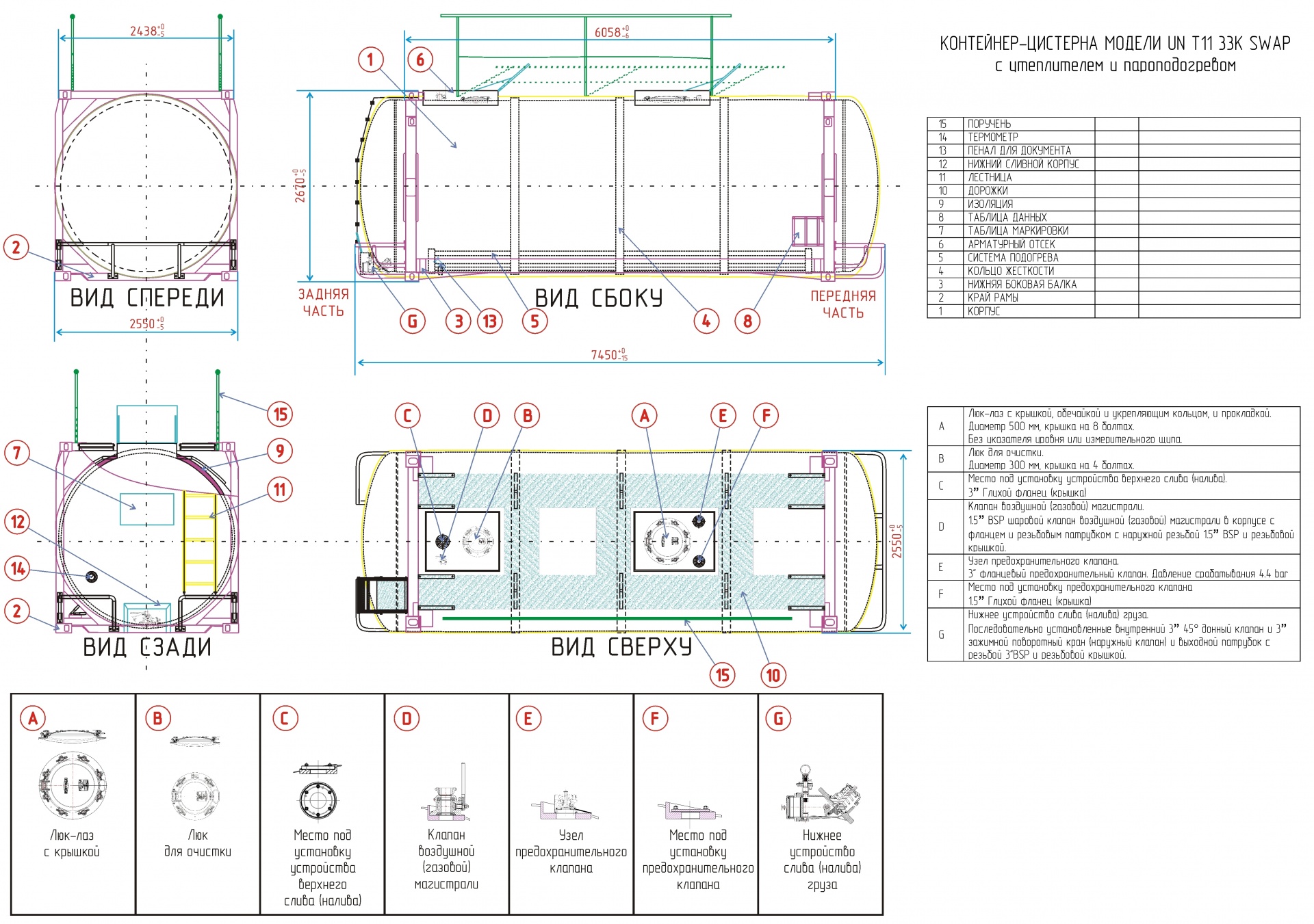
Детальное описание
| Характеристика | Значение |
| Номер инструкции ООН | UN Т11 |
| Материал цистерны | Нержавеющие стали марок SANS 50028-7 1.4402/1.4404(316L) |
| Материал основной рамы | GB / T 1591 - Q345D или SPA-H |
| Максимальная масса брутто, кг | 36000 |
| Собственная масса контейнера (тара) (±3%), кг | 4400 |
| Вместимость цистерны, л | 33000 +/- 1,5% |
| Максимальная полезная нагрузка, кг | 31 600 |
| Давления и температуры | |
| Максимально допустимое рабочее давление, МПа/бар | 0.40/4 |
| Расчетное давление, МПа/бар | 0.40/4 |
| Испытательное давление, МПа/бар | 0.60/6 |
| Давление начала открытия предохранительного клапана (не более), МПа | 0.44/4,4 |
| Давление полного закрытия предохранительного клапана после срабатывания (не менее), МПа/бар | 0.40/4 |
| Расчетное наружное давление, МПа/бар | 0.04/0,4 |
| Расчетная температура, °С | -40 до + 130 |
| Максимальная температура перевозимого груза, °С | + 130 |
| Температурный диапазон эксплуатации, °С | -40 до +130 |
| Внутренний диаметр цистерны, мм | 2378 |
| Габаритные размеры, мм | |
| длина | 7450 |
| по ширине вверху, мм | 2438 |
| по ширине внизу, мм | 2550 |
| высота | 2670 |
| Угловые фитинги | 8ед. по ISO 1161 |
| Номинальная толщина стенки цилиндрической части цистерны, мм | 4.4 |
| Номинальная толщина стенки днищ цистерны, мм | 5.32 |
| Защита от повреждений | Установлены опорные трубы, защитные пластины на верхней и нижней поверхностях элементов рамы, прилегающих к угловым отливам, износостойкие пластины из нержавеющей стали установлены на боковых поверхностях угловых столбов в средних точках. |
| Защита по концам емкости | Два съемных бампера из нержавеющей стали будут установлены спереди и сзади танк-контейнера |
| Штабелируемость | 3ед. |
| Приборы, арматура, принадлежности | |
| Люк-лаз с крышкой, обечайкой и укрепляющим кольцом, и прокладкой. (производитель GUARD, Fort Vale или Perolo) | Диаметр 500 мм, крышка на 8 болтах. Без указателя уровня или измерительного щупа. |
| Люк для очистки (производитель GUARD, Fort Vale или Perolo) | Диаметр 300 мм, крышка на 4 болтах. |
| Узел предохранительного клапана (производитель GUARD, Fort Vale или Perolo) | 3" фланцевый предохранительный клапан. Давление срабатывания 4.4 bar / 0.44Мпа. Фланец крепления вварен в емкость, расположен горизонтально. |
| Клапан воздушной (газовой) магистрали (производитель GUARD, Fort Vale или Perolo) | 1.5” BSP шаровой клапан воздушной (газовой) магистрали в корпусе с фланцем и резьбовым патрубком с наружной резьбой 1.5” BSP и резьбовой крышкой. |
| Место под установку устройства верхнего слива (налива) (производитель GUARD, Fort Vale или Perolo) | 3” Глухой фланец (крышка) |
| Нижнее устройство слива (налива) груза (производитель GUARD, Fort Vale или Perolo) | Последовательно установленные внутренний 3” 45° донный клапан и 3” зажимной поворотный кран (наружный клапан) и выходной патрубок с резьбой 3"BSP и резьбовой крышкой. |
| Арматурные отсеки | 2 верхних короба обеспечивающих защиту пролива продукта Центральный отсек содержит: - Люк-лаз с крышкой и прокладкой; - Узел предохранительного клапана; - Глухой фланец Тыловой отсек содержит: - Клапан воздушной (газовой) магистрали; - Место под установку устройства верхнего слива (налива) груза; - Люк для очистки |
| Термометр | С двумя шкалами, от -40 ° C до 160 ° C |
| Теплоизоляция цистерны | Негорючие маты из минеральной ваты или аналогичные по техническим характеристикам. Материал кожухов – стекловолокнистый пластик с защитно-декоративным покрытием |
| Система разогрева груза (основная) Предохранительный клапан системы разогрева устанавливается по требованию заказчика | 8 продольных каналов, соединенных торцевыми коллекторами, приваренные к цистерне в ее нижней части. Теплоноситель - перегретый водяной пар с максимальной температурой 130°С и давлением 0.4МПа. Материалы - те же, что и материалы цистерны |
| Площадка обслуживания | Дорожка шириной 475 мм, алюминиевая |
| Перила | Есть |
| Лестница | Задняя правая сторона, противоскользящие перекладины, рукоятки в верхней части лестницы |
| Защищенность от статического электричества, мм | Защищен |
Создано 13.07.2020 Изменено 21.04.2026




