Танк-контейнер тип Т3 объём 24000 литров, для перевозки и временного хранения мазута, битума и других нефтепродуктов - Продам в Благовещенске (Амурская обл.)
Россия, Амурская обл., Благовещенск (Амурская обл.), ул. Чехова, д.3, офис 27
Детальное описание
Внимание! Цена может быть не актуальной из-за курса доллара, пожалуйста уточняйте!
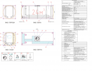
Танк-контейнер тип Т3 объём 24м3 с термоизоляцией и подогревом, для перевозки мазута, битума и других нефтепродуктов.
Технические характеристики резервуара для битума
Тип танка Стандартный 20-фут танк-контейнер, полнокаркасная рама, тип UN Portable Tank T3,
с изоляцией и подогревом.
Размеры рамы длина 20’ (6058°-6 )
ширина 8’ (2438°-5 )
высота 8’6” (2591°-5 )
Расстояние между центрами отверстий угловых фитингов, мм по длине 5853±4'5
по ширине 2259±4
Емкость 24,000 литров (-2%, 0%)
Общая емкость (за вычетом внутренних нагревательных труб) 22,800 литров ±2%
Максимальная масса брутто 30,480 кг
Тара (расчетная) 6,100 кг +/- 5%
Макс полезная нагрузка 24,380 кг
Рабочее давление 1.76 Бар/0.176 МПа
Испытательное давление 2.65 Бар/0.265 МПа
Допустимый вакуум 0.41 Бар/0.041 МПа
Расчетная температура 400C to +1700C
Материал сосуда 16MnDR или SA516GR70 (сталь конструкционная низколегированная)
Толщина оболочки 6 мм
Толщина днищ 6 мм после формовки
Допуск на коррозию 1 мм (макс.)
Материал рамы GB/T 1591-94-Q345D (Низколегированная высокопрочная конструкционная сталь)
Материал оболочки Q345D (Низколегированная высокопрочная сталь)
Угловые фиттинги ISO 1161 - 8 ед.
Рентгенография Оболочка – ASME (частично), днища - ASME (полностью)
Перевозимый груз Битум
Штабелирование В высоту 10ед.
Инспекционное агентство Регистр Ллойда (Lloyd's Register – LR)
Фурнитура и аксессуары
1. Люк-лаз 1 х люк-лаз диаметром 500мм с загрузочным/смотровым люком на 4 болтах, предохранительным клапаном и клапаном воздушной (газовой) магистрали
2. Узел предохранительного клапана 1 x 2 1/2 ”предохранительный клапан BSP без пламепрерывающей сетки, с манометром
Установленное давление: 2,19 бар, без вакуума
Примечание: клапан установлен в люк
3. Клапан воздушной (газовой) магистрали 1.5” BSP шаровой клапан воздушной (газовой) магистрали с заглушкой
Примечание: клапан установлен в люк
4. Узел нижнего сливного устройства 3” задвижка, оканчивающаяся резьбовым соединителем 3” BSP и крышкой
5. Арматурный отсек 1 верхний короб обеспечивающих защиту от пролива продукта
Отсек содержит:
- 1 х люк-лаз с загрузочным/смотровым люком на 4 болтах, предохранительным клапаном и клапаном воздушной (газовой) магистрали
- 1 x 2 1/2 ”предохранительный клапан BSP без пламепрерывающей сетки, с манометром
- 1.5” BSP шаровой клапан воздушной (газовой) магистрали с заглушкой
6. Система подогрева Сдвоенные нагревательные трубы будут установлены в задней части, а выхлопные трубы - в верхней задней части.
Входные фланцы для крепления горелки, чтобы можно было установить собственное отопительное оборудование заказчика.
7. Изоляция Резервуар изолирован минеральной ватой толщиной 50 мм. Торцы резервуаров изолированы минеральной ватой.
Внешняя облицовка - лист из углеродистой стали
8. Термометр 2 шт., Термометр с двойной шкалой, от -20 ° C до 300 ° C, установлен в левой задней части.
9. Площадки обслуживания Состоят из трапов с настилом из просечно-вытяжного листа алюминия шириной 475мм
10. Лестница Алюминиевая, противоскользящая
Расположена справа сзади
11. Заземление На нижней поперечной балке задней торцевой рамы установлены пластина и винт для подсоединения кабеля заземления контейнера.
12. Пенал для документов Пластиковый тубус в задней части справа
13. Таблица с данными Совместные данные в соответствии с кодом изделия
14. Внутренняя обработка емкости Продольные и круговые сварные швы, стяжки опорных кронштейнов –
после сварки огрунтованы и отполированы
Вся внутренняя поверхность химически очищается после завершения всех сварных и монтажных операций
15. Внешняя обработка Внешняя поверхность резервуара очищается после завершения всех сварочных и испытаний.
Предоставляем международный сертификат морского регистра (Lloyd's Register)!!!
ТОЛЬКО ПРОДАЖА!!! В АРЕНДУ НЕ СДАЁМ!!!
Создано 14.04.2021 Изменено 22.04.2026




