БЕТОННЫЙ ЗАВОД КОМПАКТНОГО ТИПА 30 м3 / ч - Продам
Детальное описание
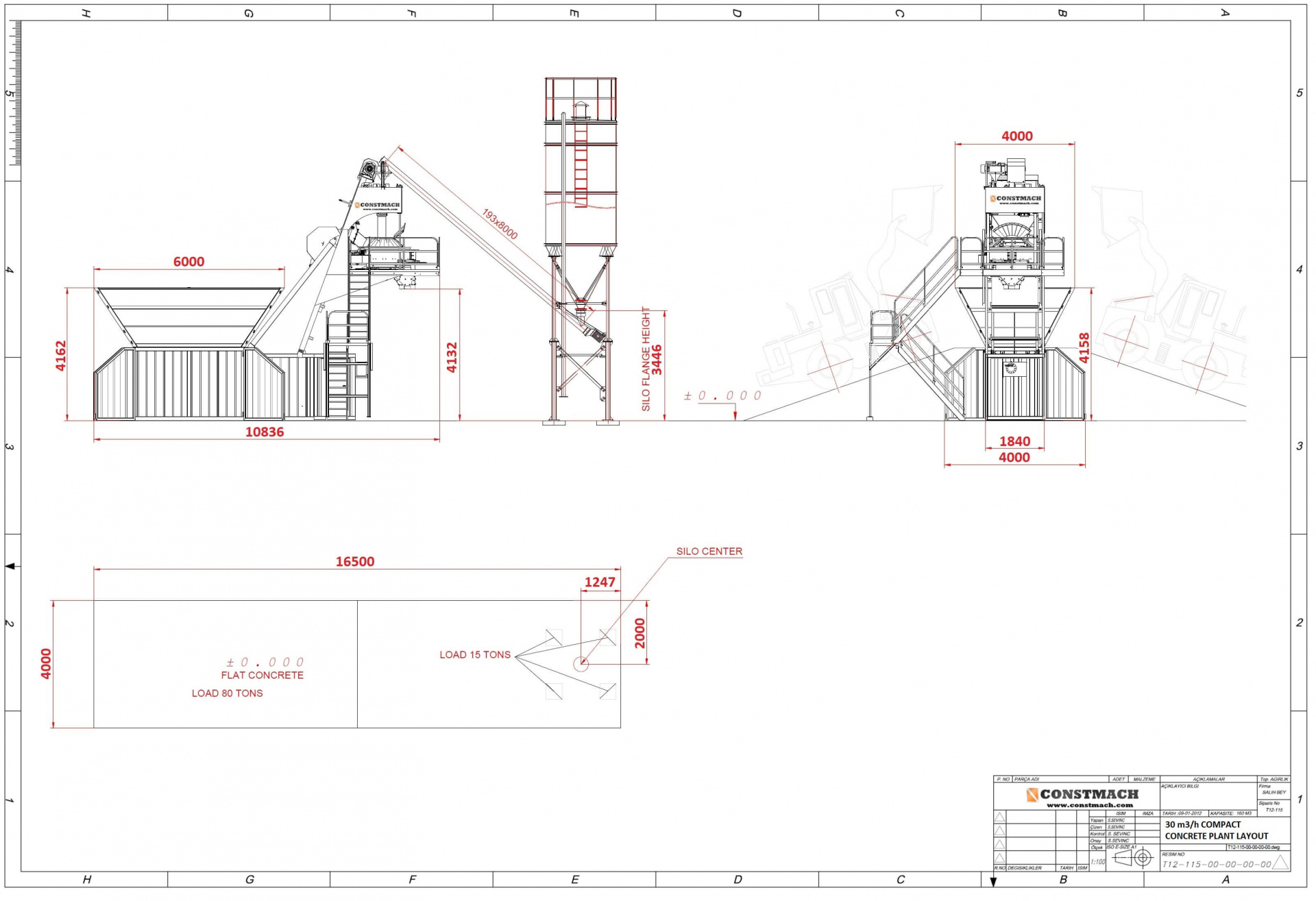
Компактные бетонные заводы | Компакт 30 Технические характеристики
Компактные бетонные заводы CONSTMACH - представляют собой специально разработанные модели для ограниченной производственной площади и удобны в транспортировке где достаточно одного тягача с прицепом или 40-футового контейнера OT. Компактные бетонные заводы также называют бетонными заводами контейнерного типа. Производстванная Мощность наших компактных бетонных заводов колеблется от 20 до 100 м3 / ч. Благодаря своей компактности, удобством в транспортировке и быстрой сборке конструкции Компактные бетонные заводы CONSTMACH требуют минимальных затрат в производство и предлагают своим пользователям экономические преимущества. Разработаны и изготовлены в соответствии со стандартами СЕ.
Основным фактором компактных размеров этих заводов является замена ленточных конвееров на скиповую систему подъема инертных для их транспортировки из бункеров в бетоносмесители. Кроме того, размеры самих бункеров заполнителей и других элементов завода также более компактны по сравнению с бетонными заводами стационарного типа.
Компактные бетонные заводы CONSTMACH нуждаются в минимальной подготовке производственной площади. Достаточно просто ровной и плоской бетонированной поверхности, способной вынести общую нагрузку завода. Цементные силосы, которые поставляются вместе с заводом, имеют устойчивые стальные опоры, что исключает необходимость дополнительного бетонирования на месте опор. Благодаря металлическим стенкам, которые присутствуют с обеих сторон бункеров подачи и откидываются выполняя роль пандуса для загрузки бункеров, отпадает необходимость возведения бетонного пандуса.
Бункеры для инертных заполнителей: 4 х 6 м³
Совокупный весовой бункер: 0, 75 м³
Совокупный весовой конвейер: 500 х 4000 мм
Объем бетоносмесителя: 0, 5 м³ (барабанный – одновальный - планетарный)
Бункер дозатор цемента: 300 кг
Бункер дозатор воды: 200 л
Бункер дозатор добавок: 10 л
Воздушный компрессор: 300 л, 5, 5 кВт
Цементный силос: дополнительно от 50 до 200 тонн.
Тип управления: ПОЛНЫЙ АВТОМАТИЧЕСКИЙ
Наша продукция имеет Европейский сертификат соответствия (CE) и гарантию 2 года.
ОБЩАЯ СТОИМОСТЬ ВКЛЮЧАЕТ СБОРКУ, ОБУЧЕНИЕ И ТЕСТИРОВАНИЕ ПРОИЗВОДСТВА.
Для получения коммерческого предложения, отправьте, пожалуйста, заявку на наш электронный адрес
КОНТАКТЫ:ХАЛИЛ ЙИЛМАЗ
Цена: по запросу
Whatsapp: 0090 5387478809 (Русский)
ЗАКАЗАТЬ: salesconstmach@mail.ru
Страна производитель Турция
Создано 18.06.2021 Изменено 10.04.2026









