Танк-контейнер тип Т11 объём 18м3 для перевозки компонентов эмульсионных взрывчатых веществ, новый - Продам в Благовещенске (Амурская обл.)
Россия, Амурская обл., Благовещенск (Амурская обл.), ул. Чехова, д.3, офис 27
Детальное описание
Внимание! Цена может быть не актуальной из-за курса валюты, пожалуйста уточняйте!
| Техническая спецификация | |
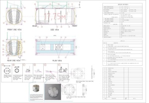
| Тип | Стандартный 20-фут танк-контейнер, полнокаркасная рама, тип UN Portable Tank T11, с изоляцией и пароподогревом. для Т11 18м3 (17750л) - с двумя противоударными перегородками (волногасителями) |
| Размеры по полнокаркасной раме, фут (мм) | длина 20’ (6058°-6 ) ширина 8’ (2438°-5 ) высота 8’6” (2591°-5 ) |
| Расстояние между центрами отверстий угловых фитингов, мм | по длине 5853±4'5 по ширине 2259±4 |
| Внутренний диаметр цистерны, мм | 2180 ±3% |
| Вместимость цистерны, л | 17750 (+0 /- 1.5%) |
| Максимальная масса брутто, кг | 36000 |
| Собственная масса контейнера (тара), кг | 3550 ±3% |
| Испытательное давление, МПа / Bar | 0.60 / 6 |
| Макс. допустимое рабочее давление, МПа / Bar | 0.40 / 4 |
| Давление начала открытия предохранительного клапана (не более), МПа / Bar | 0.44/4.4 |
| Давление полного закрытия предохранительного клапана после срабатывания (не менее), МПа / Bar | 0.40/4 |
| Температурный диапазон эксплуатации емкости, °С | - 40 до +130 |
| Материал цистерны | Нержавеющая сталь SANS 50028-7 WNr 1.4402/1.4404 (C<0.03%), эквивалент 316L |
| Материал противоударной перегородки (волногасителя) | Нержавеющая сталь ASTM A240 316L 2 ед., номинальной толщиной 3мм |
| Ном. толщина стенки цилиндрической части цистерны, мм | 4.4 |
| Ном. толщина стенки днищ цистерны, мм | 4.5 |
| Материал рамы | Сталь GB/T 1591-Q345D или SPA-H |
| Угловые фитинги | ИСО 1161, 8ед. |
| Приборы, арматура, принадлежности | |
| Люк-лаз с крышкой, обечайкой и укрепляющим кольцом, и прокладкой (производитель Fort Vale) | Диаметр 500 мм, крышка на 8 болтах. |
| Узел предохранительного клапана (производитель Fort Vale) | Предохранительный клапан 2½” BSP Super Maxi relief valve fitted (FV: 01В/16312). |
| Фланцевое соединение с крышкой под дополнительное оборудование | 2½” фланец крепления вварен в емкость, расположен горизонтально, с заглушкой. |
| Клапан воздушной (газовой) магистрали (производитель Fort Vale) | 1.5” BSP шаровой клапан воздушной (газовой) магистрали |
| Место установки устройства верхнего слива (налива) (производитель Fort Vale) | 3” Глухой фланец (крышка) |
| Нижнее устройство слива (налива) груза (производитель Fort Vale) | Последовательно установленные внутренний 3” 45° донный клапан и 3” зажимной поворотный кран (наружный клапан) и выходной патрубок с резьбой 3"BSP и резьбовой крышкой. |
| Арматурные отсеки | 2 верхних короба обеспечивающих защиту пролива продукта с закрывающейся крышкой Большой арматурный отсек содержит: - Люк-лаз с крышкой; - Узел предохранительного клапана; - 2 места под установку дополнительного оборудования (фланец 2½” с крышкой) Малый арматурный отсек содержит: - Место установки устройства верхнего слива (налива); - Клапан воздушной (газовой) магистрали; |
| Корпус нижнего устройства слива (налива) | Защитный корпус с крышкой |
| Площадки обслуживания | «В»-образной формы 2 продольных трапа по бокам и 3 поперечных трапа. |
| Система разогрева груза | 6 продольных каналов, соединенных торцевыми коллекторами, приваренные к цистерне в ее нижней части |
| Изоляция и облицовка | Негорючие маты на алюминиевой подложке |
| Перила (ограждения) | 2ед., складные, высота 1100мм |
| Термометр | Диапазон измерения – от - 40 до + 160°С |
| Лестница | Расположена справа. Ширина 450мм. |
| Заземление | На нижней поперечной балке |
| Пенал для документов | Пластиковый тубус в задней части справа |
| Калибровочная таблица | Калибровочная пластина в большом арматурном отсеке |
| Срок эксплуатации до списания, лет | 20 лет |
Предоставляем международный сертификат морского регистра (Lloyd's Register)!!!
ТОЛЬКО ПРОДАЖА!!! В АРЕНДУ НЕ СДАЁМ!!! ТОЛЬКО НОВЫЕ, Б/У НЕ ТОРГУЕМ!!!
Создано 20.06.2025 Изменено 22.04.2026






