Фрезерный станок с ЧПУ OPTImill FU 3
Реклама Рекомендуем предложения
Детальное описание
Описание
- Система ЧПУ Siemens Sinumerik 828D с 15.6-дюймовым сенсорным дисплеем
- Жесткая тяжелая конструкция станины
- Высокая производительность
- Инструментальный магазин с двойным захватом на 24 слота входит в стандартную комплектацию
- Шпиндель In-line установлен на высокоточных подшипниках серии Р5 с постоянной автоматической смазкой
- Возможна комплектация высокочастотным шпинделем KESSLER со встроенным приводным двигателем, который не нуждается в передаточном механизме
- Закрытый электрошкаф со встроенным теплообменником обеспечивает оптимальную температуру и предотвращает попадание частиц грязи
- Автоматическая централизованная смазка
- Подсветка рабочей зоны
- Конвейер для стружки ленточного типа для эффективного удаления стружки
- Встроенная система внутреннего охлаждения инструмента CTS 20 бар
- Пистолет для очистки рабочей зоны от стружки
- Портативный электронный маховик
- Локальная сеть
- ЭМС (Электромагнитная совместимость)
- Разъем RJ45, USB и электропитание 230 В
- Два года гарантии на комплектующие SIEMENS
Система Siemens Sinumerik 828D PPU290
- Функции безопасности системы управления комплексной безопасности
- Обнаружение и обработка остаточных материалов для механической обработки
- Пошаговое программирование работы ShopMill
- Управление сетевыми дисками
- 3-D моделирование
- Одновременная запись
- Программное обеспечение SW 28x
- Сенсорный экран 15.6”
- Формат 16:9
- Емкостный дисплей с мультисенсорным контроллером
- Интуитивно понятное мультитач-управление
- Выбор программной клавиши с помощью сенсора
- Датчик приближения / датчик расстояния для интеллектуального управления дисплеем
- Стекло, защищенное от царапин
- Отсутствие батареек (постоянное кэширование данных по технологии NV-RAM)
- Может эксплуатироваться в перчатках
- Передние интерфейсы: USB 2.0, RJ45 Ethernet, IP65
Описание узлов и механизмов
Направляющие
Высокоточные линейные роликовые направляющие осей обеспечивают высокую жесткость и точностьВозможно увеличение скорости перемещения до 48 000 мм / мин
Быстрая скорость ускорения / торможения
Увеличенное рабочее пространство
Облегчает загрузку и разгрузку станкаРасстояние шпинделя до стола 100-500 мм
Конвейер для стружки
Станок оснащен системой для оптимального удаления стружкиСтанина
Ребристая поверхность, жесткое основание станка, изготовленное из качественного литьяПрецизионные шариковые винтовые приводы
С пред натянутой двойной гайкой, которая обеспечивает высокую точность и низкую вибрациюШпиндель
Прямые шпиндели (In-line) 15 000 об / минСистема охлаждения шпинделя обеспечивает защиту от коррозии в замкнутом цикле
Пистолет для удаления стружки
Легкая очистка рабочего пространстваИнструментальный магазин
Двойной зажим
Барабанный механизм
24 слота для инструментов
Время смены инструмента (от инструмента к инструменту): 2 с
Отделитель масла / маслосборник
Разделение посторонних масел методом обезжириванияРазделение твердых частиц путем осаждения в сборном контейнере
Централизованная смазка
Значительно предотвращает износ, затраты на ремонт и вынужденные простоиПоворотный и поворотный стол
Нагрузка до 100 кгДиаметр 320 мм
Конвейер для стружки
Ленточный типДля эффективного удаления стружки
Ручной маховик
Портативный; электронныйЗначительно облегчает ретракцию программ
Ударный выключатель аварийной остановкиВключение датчиков
| Напряжение | 380 В |
| Мощность привода шпинделя | 15 кВт |
| Конус шпинделя | SK 40 DIN 69871 |
| Крутящий момент шпинделя | 20 Нм |
| Точность позиционирования | ± 0,005 мм |
| Точность повторяемости | ± 0,005 мм |
| Частота вращения шпинделя | 15000 об/мин |
| Кол-во T-образных пазов на столе | 4 |
| Расстояние между Т-образными пазами на столе | 75 мм |
| Размер Т-образных пазов стола | 12 мм |
| Максимальная нагрузка на стол | 100 кг |
| Количество осей | 3 |
| Автоматическое перемещение по оси X | 400 мм |
| Автоматическое перемещение по оси Y | 560 мм |
| Автоматическое перемещение по оси Z | 400 мм |
| Скорость подачи по оси X | 48000 мм/мин |
| Скорость подачи по оси Y | 48000 мм/мин |
| Скорость подачи по оси Z | 48000 мм/мин |
| Ускорение осей X, Y, Z | 6 м/с2 |
| Вращение по оси С | 360 ° |
| Максимальная скорость вращения оси С | 90 об/мин |
| Угол наклона оси А | ± 120 / 30 ° |
| Максимальная скорость наклона оси А | 16.6 об/мин |
| Количество слотов для инструментов | 24 |
| Максимальный диаметр инструмента | 80 мм |
| Максимальная длина инструмента | 245 мм |
| Максимальная масса инструмента | 8 кг |
| Время смены инструмента | 2 с |
| Давление сжатого воздуха | 6 бар |
| Объем бака СОЖ | 250 л |
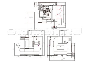
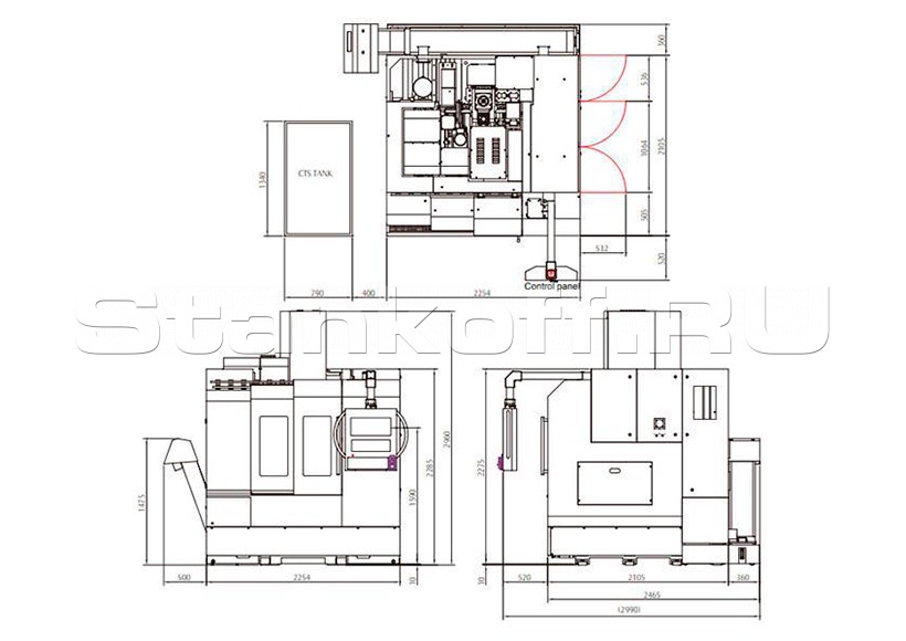
| Вес | 5000 кг |
| Габариты (Д*Ш*В) | 2254x2990x2960 мм |
Похожие товары
Каталог
Компания
Станкофф.RU
420127, Россия, Татарстан, Казань, ул. Фатыха Амирхана, 42а
+7 (800) 5555770
Социальные группы







